N41-G1
| cena projektu: | 6200 zł |
| dostępność: | projekt dostępny! |
autor projektu: arch. Anna Chudzicka-Matusiak
| cena projektu: | 6200 zł |
| dostępność: | projekt dostępny! |
główne dane:
| pow. użytkowa: | 128,77 | m2 |
| pow. zabudowy: | 153,73 | m2 |
| pow. całkowita: | 260,52 | m2 |
| wys. budynku: | 8,35 | m |
| kąt nachylenia dachu skośnego: | 38 | o |
| min. wysięg okapu: |
0,60 | m |
| kubatura netto: |
460 | m3 |
informacje dodatkowe:
fundamenty.: żelbetowe + bloczki betonowe + styropian
ściany zewn.: bloczek z betonu komórkowego o gr. 24 cm + styropian o gr. 20 i 24 cm
ściany wewn.: bloczek z betonu komórkowego o gr. 24 cm, bloczek silikatowy o gr. 12 i 8 cm.
stropy: żelbetowe
dach skośny: konstrukcja drewniana+ wełna mineralna
wykończenie zewn.: tynk silikonowy, elastyczna cegła elewacyjna/ płytki ceglane, blachodachówka panelowa
ogrzewanie: pompa ciepła typu powietrze-woda + PV; ogrzewanie podłogowe wodne + grzejniki drabinkowe
wentylacja: w pom. mieszkalnych i pom. gosp.: mechaniczna z rekuperacją w systemie rozdzielaczowym; w garażu: wentylacja grawitacyjna
EP < 70 kWh/ (m2 * rok) wskaźnik EP określa zapotrzebowanie na nieodnawialną energię pierwotną do ogrzewania, wentylacji, chłodzenia i przygotowania c.w.u., jest miarą ekologiczności budynku
EUco < 70 kWh/ (m2 * rok) wskaźnik EUco określa zapotrzebowanie na energię użytkową do ogrzania i wentylacji, jest główną miarą energooszczędności budynku, budynek o EUco < 70 kWh/ (m2 * rok) uznaje się za energooszczędny
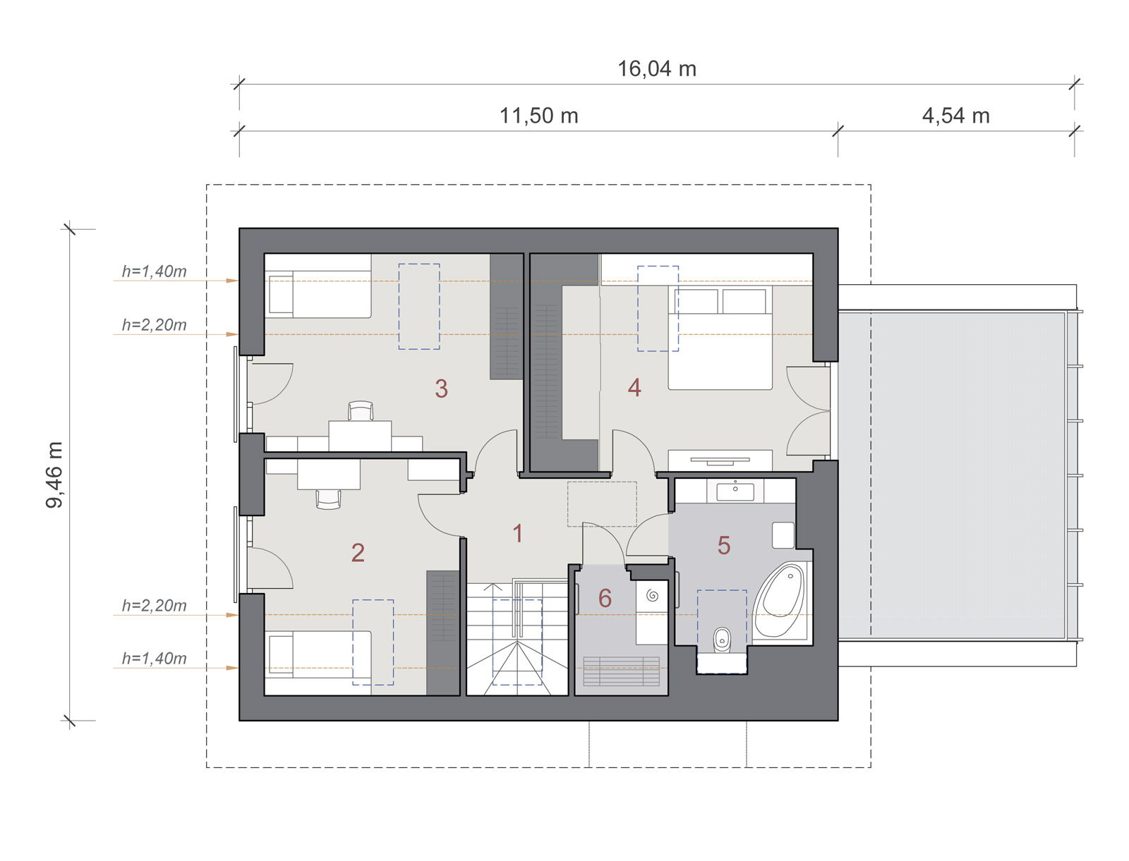
rzuty:
- prezentowane materiały graficzne mają charakter koncepcyjno- poglądowy i nie ujmują szczegółów właściwych dla projektu arch.- budowlanego
autor projektu: arch. Anna Chudzicka-Matusiak
























